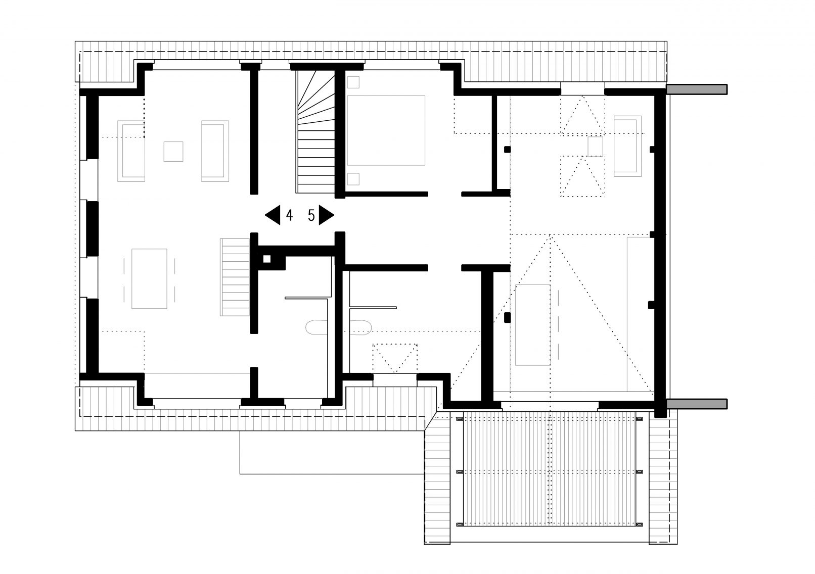
Umbau MFH Erzingerstraße
Ressource: Altbau im Dorfkern
Das 1953 als Wohn- und Geschäftshaus errichtete Gebäude wird durch seinen Umbau die Wiederbelebung des Dorfkernes unterstützen.
Die Bevölkerung nimmt seit einigen Jahren in Rosenfeld ab.
Während über 1.800 der Haushalte in Rosenfeld und seinen Teilgemeinden Ein- und Zweipersonenhaushalte sind, gibt es jedoch für diese Haushaltsgröße nur ca. 600 Wohnungen mit bis zu drei Räumen. Daraus ergibt sich ein deutlicher Bedarf an kleinen Wohnungen mit bis zu 3 Räumen.
Um dieses Defizit kümmern wir uns mit dem Umbau von einer größeren Wohnung und unausgebautem Raum zu einem Mehrfamilienhaus mit mehreren kleineren Wohneinheiten.
In Zusammenarbeit mit FR-Innenarchitektur
Baujahr/Umbau
- 2019-2020
Bauherr
- Privat
Standort
- Rosenfeld Leidringen
Projektstand
- Innenausbau



